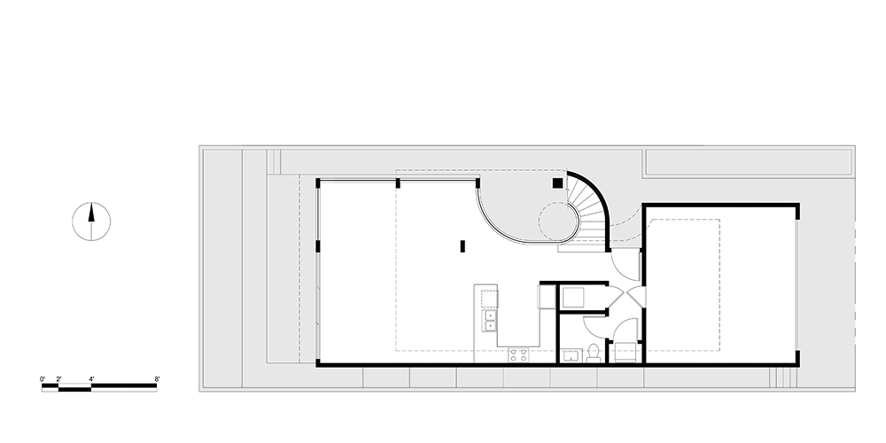
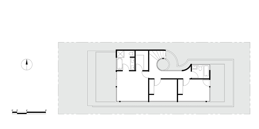
Sunset Terrace

2014 - 2021

Location: Laguna Beach, California

Description: Single Family Dwelling

Size: 1,500 s.f.

Status: Completed

Photography: John Linden

Award: Merit Award, AIA|LA 2022 Residential Architecture Awards